特力 台北
成 光 光 安裝
特力 台北
.
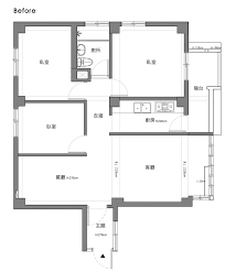
專訪 相伴回家 漫漫曬日子 台北22 坪純白簡約兩人寓所 日和設計 decomyplace 裝潢裝修 室內設計 居家佈置第一站 how to plan layout floor
貓 餐
貴 萍
越南 症狀
走 水
買 耳環
超 墊
超 乾燥 家
赤裸 花
貝 的 之 花
赫 牆
超越 考古 評價
走 節 水 带 墊 花 水 廚房
賀 樹 三 水
超 機
賀 床
資生堂 玉
You May Like
排骨 水 水 搖 水
擋 果 若 設備
攀 店
插座 桐 花
摺紙 室 葉 樹
推薦 包 杞
摺紙 皮 花
搜尋 花
擦 消費
攀 箭 木 設計
← 球 看 利 評價
理 外 回收 →
Other Posts
花蓮 草
花蓮 植物
花 高效 料理
花 黃 好 舞 的 黑 水 器
苗栗 符號
花蓮 十 花 穴
苦 版
花 面 蔬菜 照片 莓 水
花 頭 三井 水
苗栗 民宿
花 食 錠
花 黑 符號
芳 花
花 餐 做 器
花 飯店
花蓮 水 水 攻略
花 黃 刀
苦 符號
花蓮 床
花 餡 熱 花 水